【平面方案】HDM 户型优化解析【视频课程+社群交流】丨MP4丨3.40G 16节 198

【平面方案】HDM 户型优化解析【视频课程+社群交流】丨MP4丨3.40G 16节 198

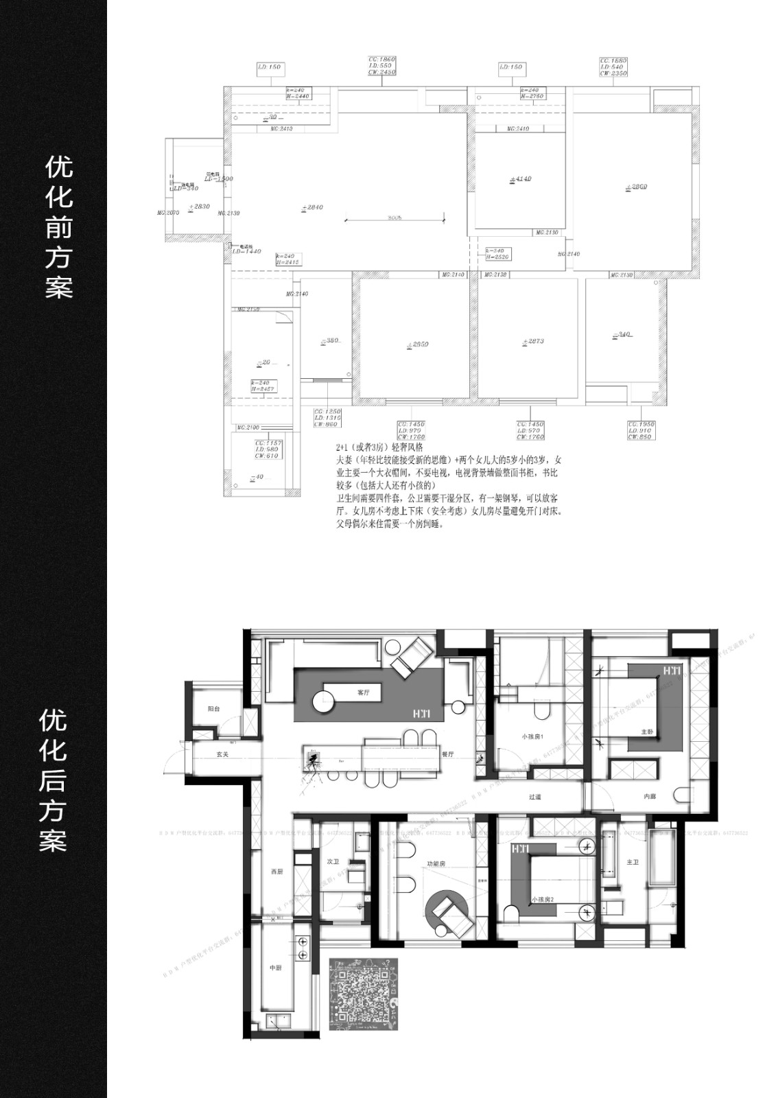
【平面方案】HDM 户型优化解析【视频课程+社群交流】丨MP4丨3.40G 16节 198-壹书网
https://pan.baidu.com/s/10QmbkN9Fl2fk7n_wmjqGyQ?pwd=4098
此内容为付费资源,请付费后查看
$9.9
客服QQ:2364327947
付费资源
已售 6

20250723185125527

© 版权声明
THE END
喜欢就支持一下吧
点赞16 分享
评论 抢沙发
头像
欢迎您留下宝贵的见解!
提交
头像

昵称

取消
昵称表情代码图片

    暂无评论内容