许多人会用iPad刷剧打游戏,直到iPad Pro的发布才让设计师意识到了iPad是可以用来画效果图的。ipad室内手绘已经被越来越多的设计师所了解,认知!ipad手绘因为其方便快捷、缩短工作时间成本、有效的客户沟通等优势被前沿设计师所掌握,ipad手绘区别于以往的纸质手绘,完全零基础的设计师在短时间内就可以掌握其使用方法,是非常超值的设计师自我投资。想要学习procreate软件的人也越来越多,下面我们来欣赏一下iPad手绘效果图表现!
![.jpg 图片[1]-【手绘设计】拓者 ipad手绘精品班(连续8天晚上集训)丨6.67G 8节-壹书网](http://wechatapppro-1252524126.cdn.xiaoeknow.com/image/ueditor/56685400_1584628463.jpg?imageView2/2/h/10000/q/80|imageMogr2/ignore-error/1)
![.jpg 图片[2]-【手绘设计】拓者 ipad手绘精品班(连续8天晚上集训)丨6.67G 8节-壹书网](http://wechatapppro-1252524126.cdn.xiaoeknow.com/image/ueditor/73213200_1584628463.jpg?imageView2/2/h/10000/q/80|imageMogr2/ignore-error/1)
![.jpg 图片[3]-【手绘设计】拓者 ipad手绘精品班(连续8天晚上集训)丨6.67G 8节-壹书网](http://wechatapppro-1252524126.cdn.xiaoeknow.com/image/ueditor/7605600_1584628464.jpg?imageView2/2/h/10000/q/80|imageMogr2/ignore-error/1)
ipad手绘对于软装设计师而言更是能让客户看到最终的软装搭配效果,因为软装设计师是将家具、布艺、摆件、灯饰、绿植等进行整体设计,整合,所以大部分都是做成ppt形式的软装方案,组合效果也是用ps拼凑出来的,缺少空间感受,而ipad手绘彻底解决了这个问题,可以绘制出同款家具、布艺、摆件等组合的空间效果图,让客户更直观感受空间。
![.jpg 图片[4]-【手绘设计】拓者 ipad手绘精品班(连续8天晚上集训)丨6.67G 8节-壹书网](http://wechatapppro-1252524126.cdn.xiaoeknow.com/image/ueditor/23933200_1584628464.jpg?imageView2/2/h/10000/q/80|imageMogr2/ignore-error/1)
![.jpg 图片[5]-【手绘设计】拓者 ipad手绘精品班(连续8天晚上集训)丨6.67G 8节-壹书网](http://wechatapppro-1252524126.cdn.xiaoeknow.com/image/ueditor/46227100_1584628464.jpg?imageView2/2/h/10000/q/80|imageMogr2/ignore-error/1)
![.jpg 图片[6]-【手绘设计】拓者 ipad手绘精品班(连续8天晚上集训)丨6.67G 8节-壹书网](http://wechatapppro-1252524126.cdn.xiaoeknow.com/image/ueditor/71980500_1584628464.jpg?imageView2/2/h/10000/q/80|imageMogr2/ignore-error/1)
![.jpg 图片[7]-【手绘设计】拓者 ipad手绘精品班(连续8天晚上集训)丨6.67G 8节-壹书网](http://wechatapppro-1252524126.cdn.xiaoeknow.com/image/ueditor/16907500_1584628465.jpg?imageView2/2/h/10000/q/80|imageMogr2/ignore-error/1)
![.jpg 图片[8]-【手绘设计】拓者 ipad手绘精品班(连续8天晚上集训)丨6.67G 8节-壹书网](http://wechatapppro-1252524126.cdn.xiaoeknow.com/image/ueditor/41856700_1584628465.jpg?imageView2/2/h/10000/q/80|imageMogr2/ignore-error/1)
![.jpg 图片[9]-【手绘设计】拓者 ipad手绘精品班(连续8天晚上集训)丨6.67G 8节-壹书网](http://wechatapppro-1252524126.cdn.xiaoeknow.com/image/ueditor/62338100_1584628465.jpg?imageView2/2/h/10000/q/80|imageMogr2/ignore-error/1)
![.jpg 图片[10]-【手绘设计】拓者 ipad手绘精品班(连续8天晚上集训)丨6.67G 8节-壹书网](http://wechatapppro-1252524126.cdn.xiaoeknow.com/image/ueditor/80391600_1584628466.jpg?imageView2/2/h/10000/q/80|imageMogr2/ignore-error/1)
ipad室内手绘适合于室内设计师、工装设计师、橱柜和定制家具设计师、软装设计师。因为ipad室内手绘有现场绘制效果图的能力所以被橱柜和定制家居设计师所钟爱,在现场沟通方案,现场绘制出方案图,让橱柜定制家居设计师节省了大把的时间成本,更有效的工作。
![.jpg 图片[11]-【手绘设计】拓者 ipad手绘精品班(连续8天晚上集训)丨6.67G 8节-壹书网](http://wechatapppro-1252524126.cdn.xiaoeknow.com/image/ueditor/57987800_1585109486.jpg?imageView2/2/h/10000/q/80|imageMogr2/ignore-error/1)
![.jpg 图片[12]-【手绘设计】拓者 ipad手绘精品班(连续8天晚上集训)丨6.67G 8节-壹书网](http://wechatapppro-1252524126.cdn.xiaoeknow.com/image/ueditor/81897600_1585109485.jpg?imageView2/2/h/10000/q/80|imageMogr2/ignore-error/1)
通过现场绘制出方案构思草图;ipad区别于其他的电脑手绘或者纸质手绘的一点就在于能随身携带在现场与客户沟通并当场绘制方案效果图,通过ipad照相机功能,在软件上直接画出方案,一般用时在20分钟左右,也就是跟客户一边闲聊一边绘制出图的;
![.jpg 图片[13]-【手绘设计】拓者 ipad手绘精品班(连续8天晚上集训)丨6.67G 8节-壹书网](http://wechatapppro-1252524126.cdn.xiaoeknow.com/image/ueditor/33472100_1585109486.jpg?imageView2/2/h/10000/q/80|imageMogr2/ignore-error/1)
![.jpg 图片[14]-【手绘设计】拓者 ipad手绘精品班(连续8天晚上集训)丨6.67G 8节-壹书网](http://wechatapppro-1252524126.cdn.xiaoeknow.com/image/ueditor/9512000_1585109486.jpg?imageView2/2/h/10000/q/80|imageMogr2/ignore-error/1)
一块iPad加一支iPencil带给我无限的可能,因为我画出一幅幅美美的手绘,因为它可以把效率提高,效率提高就是节省成本。那么现在有更高效率帮助设计师提高工作效率的技能,大家怎么能拒绝呢?
![.jpg 图片[15]-【手绘设计】拓者 ipad手绘精品班(连续8天晚上集训)丨6.67G 8节-壹书网](http://wechatapppro-1252524126.cdn.xiaoeknow.com/image/ueditor/29637400_1585109486.jpg?imageView2/2/h/10000/q/80|imageMogr2/ignore-error/1)
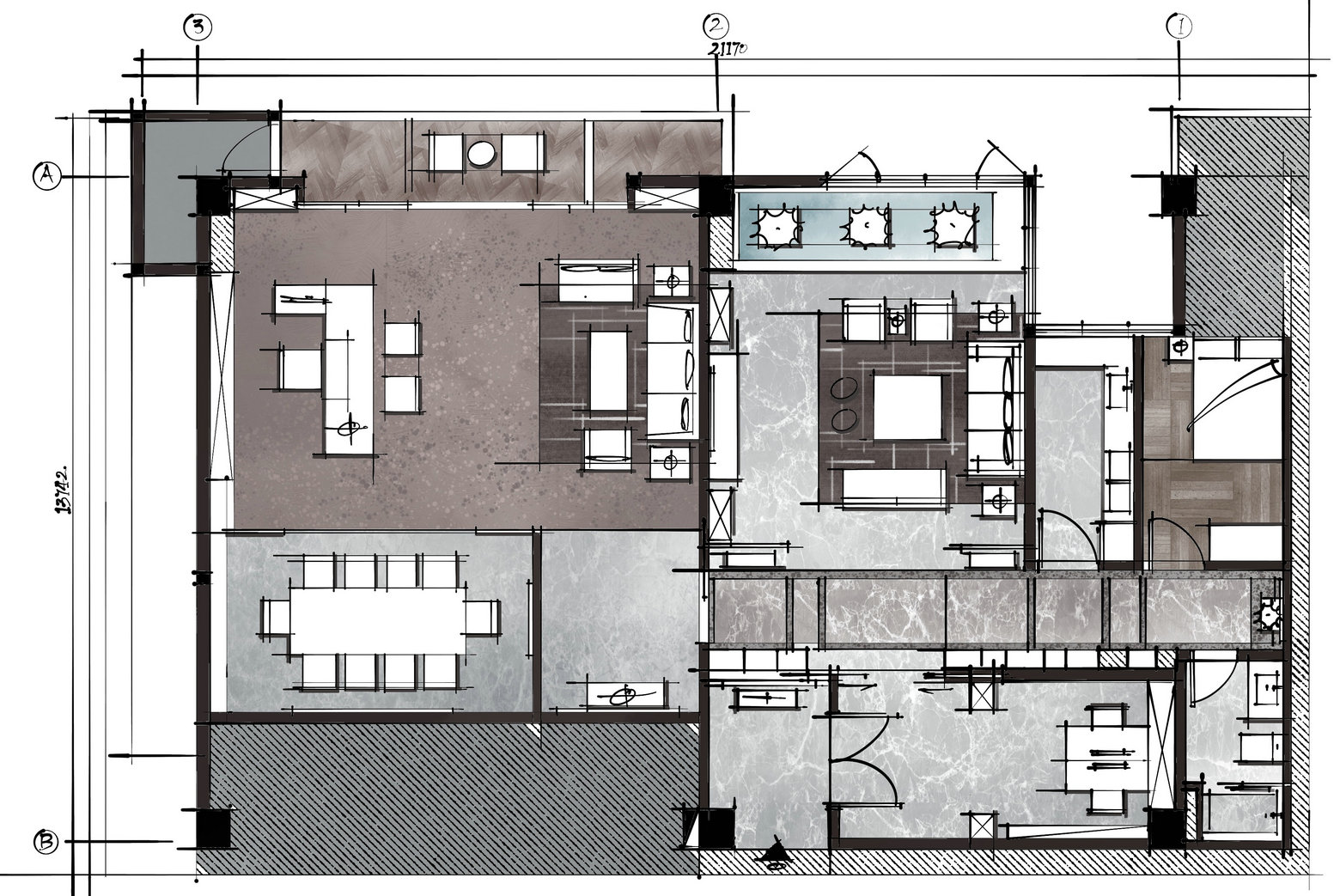
制作彩色平面图、立面图,现在大部分设计师是使用cad制图做前期方案沟通的,因为是比较专业的图纸,大部分客户是看不懂的,等根据立面图做完效果图后客户再调整,非常耗时,通过ipad手绘彩色立面图、平面图,客户比较能直观的看到每个墙面的造型,及整体效果搭配,直观再现;
![.jpg 图片[16]-【手绘设计】拓者 ipad手绘精品班(连续8天晚上集训)丨6.67G 8节-壹书网](http://wechatapppro-1252524126.cdn.xiaoeknow.com/image/ueditor/11586900_1585109487.jpg?imageView2/2/h/10000/q/80|imageMogr2/ignore-error/1)
![.jpg 图片[17]-【手绘设计】拓者 ipad手绘精品班(连续8天晚上集训)丨6.67G 8节-壹书网](http://wechatapppro-1252524126.cdn.xiaoeknow.com/image/ueditor/2937000_1585109487.jpg?imageView2/2/h/10000/q/80|imageMogr2/ignore-error/1)
![.jpg 图片[18]-【手绘设计】拓者 ipad手绘精品班(连续8天晚上集训)丨6.67G 8节-壹书网](http://wechatapppro-1252524126.cdn.xiaoeknow.com/image/ueditor/77819100_1585109486.jpg?imageView2/2/h/10000/q/80|imageMogr2/ignore-error/1)
![.jpg 图片[19]-【手绘设计】拓者 ipad手绘精品班(连续8天晚上集训)丨6.67G 8节-壹书网](http://wechatapppro-1252524126.cdn.xiaoeknow.com/image/ueditor/82773300_1585109487.jpg?imageView2/2/h/10000/q/80|imageMogr2/ignore-error/1)
在效果图上直接调整方案,通过软件,直接在效果图上修改方案,比如吊顶造型、墙面造型等等的修改,省去了3dmax修改渲染图的时间;
![.jpg 图片[20]-【手绘设计】拓者 ipad手绘精品班(连续8天晚上集训)丨6.67G 8节-壹书网](http://wechatapppro-1252524126.cdn.xiaoeknow.com/image/ueditor/79445400_1585109487.jpg?imageView2/2/h/10000/q/80|imageMogr2/ignore-error/1)
![.jpg 图片[21]-【手绘设计】拓者 ipad手绘精品班(连续8天晚上集训)丨6.67G 8节-壹书网](http://wechatapppro-1252524126.cdn.xiaoeknow.com/image/ueditor/2433900_1585109488.jpg?imageView2/2/h/10000/q/80|imageMogr2/ignore-error/1)
![.jpg 图片[22]-【手绘设计】拓者 ipad手绘精品班(连续8天晚上集训)丨6.67G 8节-壹书网](http://wechatapppro-1252524126.cdn.xiaoeknow.com/image/ueditor/15196000_1585109488.jpg?imageView2/2/h/10000/q/80|imageMogr2/ignore-error/1)
![.jpg 图片[23]-【手绘设计】拓者 ipad手绘精品班(连续8天晚上集训)丨6.67G 8节-壹书网](http://wechatapppro-1252524126.cdn.xiaoeknow.com/image/ueditor/45590100_1585109488.jpg?imageView2/2/h/10000/q/80|imageMogr2/ignore-error/1)
通过ipad手绘可以随时记录灵感,或者绘制比较优秀的案例中的墙、顶、地面造型,家具搭配等。ipad手绘 有这么多的优势,作为设计师的你还在等待观望吗?学习新知识要趁早,现在室内装饰装修行业如此的竞争激烈,早为自己投资早受益。
以下是学员部分作品欣赏
![.jpg 图片[24]-【手绘设计】拓者 ipad手绘精品班(连续8天晚上集训)丨6.67G 8节-壹书网](http://wechatapppro-1252524126.cdn.xiaoeknow.com/image/ueditor/21333100_1584628467.jpg?imageView2/2/h/10000/q/80|imageMogr2/ignore-error/1)
![.jpg 图片[25]-【手绘设计】拓者 ipad手绘精品班(连续8天晚上集训)丨6.67G 8节-壹书网](http://wechatapppro-1252524126.cdn.xiaoeknow.com/image/ueditor/38099400_1584628467.jpg?imageView2/2/h/10000/q/80|imageMogr2/ignore-error/1)
![.jpg 图片[26]-【手绘设计】拓者 ipad手绘精品班(连续8天晚上集训)丨6.67G 8节-壹书网](http://wechatapppro-1252524126.cdn.xiaoeknow.com/image/ueditor/55376400_1584628467.jpg?imageView2/2/h/10000/q/80|imageMogr2/ignore-error/1)
![.jpg 图片[27]-【手绘设计】拓者 ipad手绘精品班(连续8天晚上集训)丨6.67G 8节-壹书网](http://wechatapppro-1252524126.cdn.xiaoeknow.com/image/ueditor/81909600_1584628467.jpg?imageView2/2/h/10000/q/80|imageMogr2/ignore-error/1)
![.jpg 图片[28]-【手绘设计】拓者 ipad手绘精品班(连续8天晚上集训)丨6.67G 8节-壹书网](http://wechatapppro-1252524126.cdn.xiaoeknow.com/image/ueditor/21099200_1584628468.jpg?imageView2/2/h/10000/q/80|imageMogr2/ignore-error/1)




![☆2024【PS 软件】LC视觉设计 PS高级进阶含更新[深度陪跑指导-内部直播-视频学思路私教教实战]丨MP4丨22.7G 53节+课件 388-壹书网](https://sucaitop.oss-cn-shanghai.aliyuncs.com/abook/2024/05/20240530165429515.jpg)












暂无评论内容